HOME
PROJEKTE
KONTAKT
IMPRESSUM
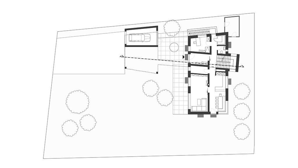
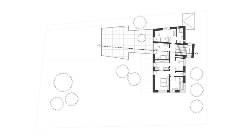
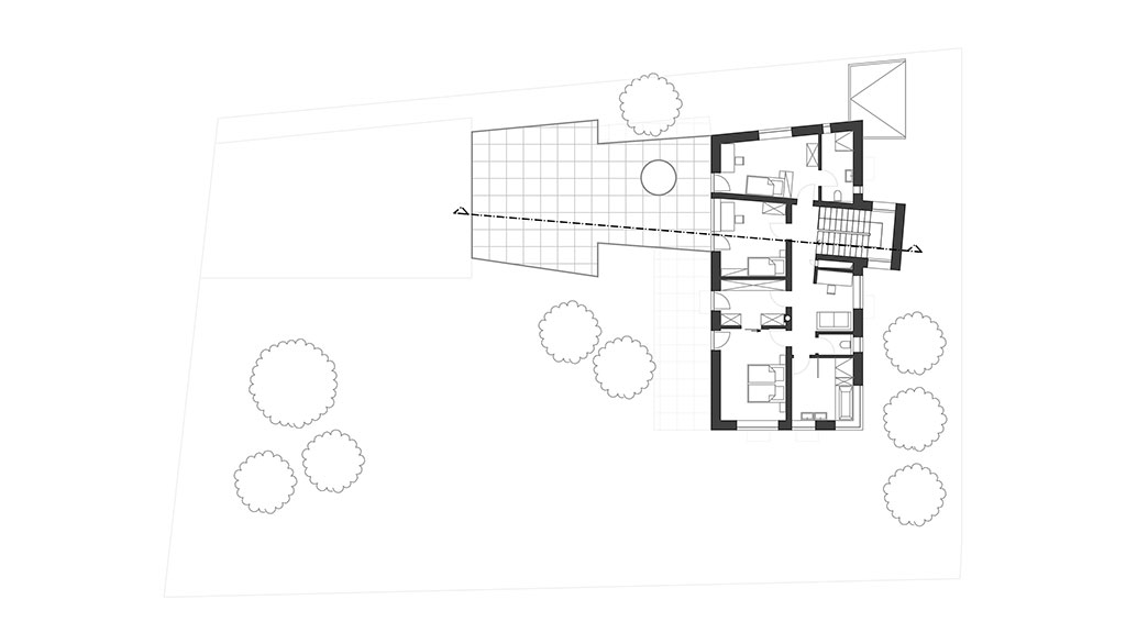
PRIVATHÄUSER
PROJEKT 06
Previous
Next
Close
© Copyright 2021 ARCHITEKTUR & DESIGN GMBH • RUDOLF BERGER